🟦⬜🟥 🟦⬜🟥 🟦⬜🟥 🟦⬜🟥 🟦⬜🟥 🟦⬜🟥

Généralités :
Les Commutateurs électroniques de type temporel de 2ème génération sont mis en service pour la première fois en France le 16 juin 1981 (système E10N1).
En effet, la République Française demeure la locomotive mondiale de la Commutation Électronique Temporelle, suite à une succession de choix politiques, techniques et industriels ambitieux de plus de deux décennies et devance en cela les conclusions unanimes du Colloque International de Commutation qui se tient du 21 au 25 septembre 1981 à Montréal (ISS' 81) qui confirme le tournant massif et définitif au tout électronique temporel et à la transmission en tout numérique MIC.
Les Commutateurs électroniques de type temporel de 2ème génération sont aujourd'hui totalement hors service (au 8 juin 2023).
Ils sont caractérisés par une capacité de raccordement typique comprise entre 15.000 et 65.000 abonnés par cœur de chaîne, avec une capacité d'établissement d'appels téléphoniques typiquement comprise entre 90.000 et 200.000 appels à l'heure ; le tout avec une fiabilité renforcée par rapport à leurs prédécesseurs temporels de première génération et une résistance accrues face aux surcharges éventuelles.
Les systèmes électroniques de type temporel de 2ème génération déployés en France sont les suivants :
Réseaux de Connexion numériques Intégralement Temporels
&
Réseaux de Connexion numériques Mixtes - Temporels et Spatiaux
En effet, certaines variantes existent dans les Réseaux de Connexion des Commutateurs temporels.
Dans un Réseau de Connexion numérique intégralement temporel (PLATON, E10N3, E10B3, MT20 de petite capacité et MT25 de petite capacité), il faut beaucoup de Mémoires Tampon afin de stocker le temps nécessaire les signaux de conversation des voies entrantes pour les rediriger vers les bonnes voies de sortie.
Vu le prix de ces mémoires au début de la commutation temporelle, ainsi que par souci de simplification du Réseau de Connexion, il a parfois été décidé pour certains systèmes (AXE10, AXE Transgate 4, E12, E10N1, MT20 de grande capacité et MT25 de grande capacité) d’intégrer un ou plusieurs étages réalisés en électronique numérique spatiale entre l’étage d’entrée temporel et l’étage de sortie temporel des Réseaux de Connexion, afin de pouvoir se passer d’un maximum de Mémoires Tampon.
Cet étage numérique spatial de brassage est plus simple à réaliser et beaucoup moins coûteux car il est dépourvu de mémoires (éléments coûteux) : il est constitué de circuits de portes logiques à commutation rapide, synchronisées sur la cadence de fonctionnement des Liaisons numériques MIC.
Par contre, un étage spatial numérique, même s’il permet d’améliorer le brassage, ne peut procéder qu’au basculement d'un Intervalle de Temps donné (IT) d'une Liaison MIC entrante vers une autre Liaison MIC sortante, toujours à la même position temporelle donnée.
Donc, un étage spatial numérique ne permet en aucun cas de décaler l’Intervalle de Temps (IT) entre une Liaison MIC entrante et une Liaison MIC sortante. Donc, ce ou ces étages ne viennent qu'en appoint dans un Réseau de Connexion numérique, mais ne peuvent pas assurer à eux seuls la commutation téléphonique complète.
Il s’agit là d’un compromis entre la technique pure et la finance, pour pouvoir réaliser un brassage entre les Liaisons numériques MIC entrantes et sortantes. Cette technique fonctionne tout aussi parfaitement que la technique de connexion purement temporelle. Cependant, l’intérêt de cet artifice tend depuis de nombreuses années à s’estomper, étant donnée la baisse des prix vertigineuse des circuits Mémoires.
En revanche, dans un Commutateur temporel, quelque soit sa génération et son modèle, le Réseau de Connexion temporel est systématiquement dupliqué pour raison de sécurité.
Famille 1000-E10 : incluant deux sous-familles : E10 et MT de la société française Alcatel qui fait aujourd'hui partie du groupe franco-américain Alcatel-Lucent :
Sous-famille E10, (abréviation : E pour Électronique car 100% électronique, projet n°10), (licence Alcatel époque CGE), dont le prototype est issu du projet PLATON, en France existe le type suivant de 2ème génération :
E10N1 - E10 Niveau 1 - (Dénomination initiale : E10B). Temporel de seconde génération mis en étude à partir de 1976 et commandé le 15 décembre 1976 par l'Administration des Télécommunications. Connu aussi sous l'appellation E10/128 US. (composé de 128 Unités de Sélection). L'organe de commande consiste en une commande répartie entre plusieurs organes différents et spécialisés. Chaque organe est dédoublé pour assurer la sécurité du système et fonctionnent en service normal, en partage de charge. Ces organes dédoublés sont : les Taxeurs (TX), les Traducteurs (TR) et les Marqueurs (MQ). Au nombre de 2 à 5 ce sont les Multienregistreurs (MR) suivant l'importance du trafic à traiter.
_____
_____
_____

Ci-dessus : vue des tous premiers CSE type 31 (Concentrateur Satellite Electronique) mis en service dans Paris Intra-Muros le 21 décembre 1983, rattachés au Commutateur E10N1 - RASPAIL 2 ET1 (AD72).
Photographie PTT - 1983 - Coll. C. R-V.
_____

Ci-dessus : CSE type 31.
Photographie PTT - 14 décembre 1989 - Coll. C. R-V.
_____
Mais à partir de 1987, les CSE31 ont été remplacés par une nouvelle génération plus évoluée conçue par Alcatel, compatible avec les services supplémentaires à valeur ajoutée et au Numéris : il s’agit des CSN (Centre Satellite Numérique) qui seront même déployés dans les commutateurs MT25 pourtant conçus par Thomson à l'origine.
Dans le système E10N1, le Commutateur doit avoir atteint le Palier Logiciel n°6 pour accepter la connexion avec les CSN.
Nota : il reste tout de même des CSE 31 en service actuellement (2017).
Concernant cette nouvelle technologie des CSN, lorsqu'elle est utilisée pour le raccordement des lignes analogiques, la conversion des signaux analogiques de conversation en signaux numériques s'effectue dès le premier étage d'entrée dans les cartes de raccordement d'abonnés. À partir de là, tout le reste de la chaîne de commutation du Commutateur de départ vers le Commutateur d'arrivée, en passant par les transmissions s'effectue en signaux numériques.
_____

Ci-dessus : vue des tous premiers CSN (Centre Satellite Numérique) mis en service ; nous reconnaissons la présentation en baies ne comportant pas de portes. (en lieu et place, des panneaux en plexiglas qui sont absents sur l'image.)
Photographie C. R-V, au central Carnot.
_____
Existent plusieurs générations de Cartes d'Abonnés utilisées dans les CSN1G. De multiples générations cohabitent.
Ci-dessous, en extrait : 3 types concernant les abonnés analogiques.

Ci-dessus : Carte d'Abonnés Analogiques Ordinaires TABAM pouvant recevoir 16 abonnés analogiques ordinaires.
Photographie C. R-V.
_____

Ci-dessus : Carte d'Abonnés Analogiques Ordinaires TMABS pouvant recevoir 16 abonnés analogiques ordinaires.
Photographie C. R-V.
_____

Ci-dessus : Carte d'Abonnés Analogiques Discriminés TABAD pouvant recevoir 8 abonnés analogiques discriminés (renvoi de taxation à domicile 12kHz).
Photographie C. R-V.
_____
Concernant les Commutateurs E10N1, tout comme PLATON, il existe au dessus de chaque groupe constitué par quelques-uns de ces Commutateurs, un Centre de Traitement des Informations (CTI) équipé d'un calculateur MITRA 225 réalisé en technologie TTL, chargé de superviser en différé un groupe de commutateurs E10 dans toutes ses fonctions (exploitation, maintenance, sauvegarde du système et de la taxation...).
Nota : à titre transitoire, les tous premiers exemplaires E10N1 de présérie sont supervisés par un CTI équipé d'un calculateur MITRA 125. Ceux-ci seront rapidement remplacés par un MITRA 225.
À la création du système E10N1 entièrement normalisé, de pleine série, un CTI pourvu d'un calculateur MITRA 225 permet de gérer jusqu'à 80.000 voire 100.000 abonnés, répartis sur un maximum de 5 à 6 Commutateurs E10N1. Puis, au fur et à mesure des évolutions, des paliers, les ressources disponibles s'avéreront tout juste suffisantes pour qu'un CTI avec MITRA 225 puisse superviser un maximum de 2 Commutateurs E10N1, eu égard, les années passant, à la complexification des logiciels et des services optionnels se diversifiant.
_____
Des dérouleurs à bandes magnétiques sont utilisés aussi bien dans un E10N1 que dans son CTI de rattachement afin d'effectuer des sauvegardes externes de sécurité (telles que des données de taxation), ou à l'inverse afin d'importer des données de programmation logicielles dans le Commutateur ou dans le CTI.

Ci-dessus : croquis d'implantation type d'un Commutateur E10N1.
_____

Ci-dessus : vue du Commutateur E10N1 prototype BREST-CENTRE 3 (QU67), alors en expérimentation courant 1980.
Photographie PTT - 1980 - in Revue T.
_____

Ci-dessus : vue de face du Commutateur E10N1 prototype BREST-CENTRE 3 (QU67).
Photographie PTT - 11 avril 1981 - Coll. Orange DANP.
_____

Ci-dessus : vue gauche du Commutateur E10N1 prototype BREST-CENTRE 3 (QU67).
Photographie PTT - 11 avril 1981 - Coll. Orange DANP.
_____

Ci-dessus : vue droite du Commutateur E10N1 prototype BREST-CENTRE 3 (QU67).
Photographie PTT - 11 avril 1981 - Coll. Orange DANP.
_____

Ci-dessus : Vue de face du Commutateur E10N1 prototype BREST-CENTRE 3 (QU67).
Photographie PTT - 9 mars 1982 - Coll. Orange DANP.
_____

Ci-dessus : vue du Commutateur E10N1 prototype BREST-CENTRE 3 (QU67).
Photographie PTT - 9 mars 1982 - Coll. Orange DANP.
_____

Ci-dessus : vue du Centre de traitement des Informations (CTI) Mitra 125 associé au Commutateur E10N1 prototype BREST-CENTRE 3 (QU67).
Photographie PTT - 11 avril 1981 - Coll. Orange DANP.
_____

Ci-dessus : Vue d'ensemble du Commutateur E10N1 captif de PARIS-CÉVENNES (AU04) destiné à l'apprentissage - fabricant : CIT-Alcatel.
Photographie PTT - 23 avril 1985 - Coll. C. R-V.
_____

Ci-dessus : vue d'ensemble d'un Commutateur E10N1.
Photographie PTT - circa 1985 - Coll. C. R-V.
_____

Ci-dessus : vue d'une travée du Commutateur E10N1 de GIVORS (LZ24).
Photographie FT - 1994 - Coll. C. R-V.
_____

Ci-dessus : mise en service à Paris (et inauguration simultanée) du Commutateur E10N1 - RASPAIL 2 ET1 (AD72) le 21 décembre 1983.
Photographie PTT - 21 décembre 1983 - Coll. C. R-V.
_____

Ci-dessus : un Ingénieur de la CIT-Alcatel qui donne des cours de commutation E10N1 à des commutants du monde entier, qui venaient en France (Cas d'un technicien jordanien).
Photographie PTT - 30 juillet 1984 - Coll. C. R-V.
_____
Ci-dessus : vue d'ensemble du Commutateur temporel E10N1 - FONTAINEBLEAU A2 (ED42) avec ses bâtis peints en gris.
Photographies C. R-V. - 22 octobre 2021 - Coll. C. R-V/Orange DANP
_____
Ci-dessus : vue d'ensemble du Commutateur temporel E10N1 - COULOMMIERS A3 (ED23) avec ses bâtis peints en gris (et son bâti d'extension en rouge).
Photographies C. R-V. - 16 mai 2022 - Coll. C. R-V/Orange DANP
_____
Ci-dessus : vue d'ensemble du Commutateur temporel E10N1 - PROVINS A2 (EF42) avec ses bâtis peints en gris (et son bâti d'extension en rouge).
Photographies C. R-V. - 16 mai 2022 - Coll. C. R-V/Orange DANP
_____
Ci-dessus : vue d'ensemble du Commutateur temporel E10N1 - CARPENTRAS 3 BOURSEUL (PA35) avec ses bâtis peints en gris.
Photographies C. R-V. - 19 juillet 2022 - Coll. C. R-V/Orange DANP
_____
Ci-dessus : vue d'ensemble du Commutateur temporel E10N1 - DIGNE SAINT-VÉRAN 1 (PA51) avec ses bâtis peints en gris (et son bâti d'extension en rouge).
Photographies C. R-V. - 25 juillet 2022 - Coll. C. R-V/Orange DANP
_____
Ci-dessus : vue d'ensemble du Commutateur temporel E10N1 - BAGNOLS-SUR-CÈZE 4 (NM52) avec ses bâtis peints en rouge, de 2ème génération.
Photographies C. R-V. - 2 août 2022 - Coll. C. R-V/Orange DANP
_____
Ci-dessus : vue d'ensemble du Commutateur temporel E10N1 - ORANGE LA-BRUNETTE (PA45) avec ses bâtis peints en gris, de 1ere génération et d'une extension en rouge de 2ème génération.
Photographies C. R-V. - 22 août 2022 - Coll. C. R-V/Orange DANP
_____
Ci-dessus : vue d'ensemble du Commutateur temporel E10N1 - GRASSE SAINTE-MARGUERITE 3 (NC15) avec ses bâtis peints en gris, de 1ere génération et d'une extension en rouge de 2ème génération.
Photographies C. R-V. - 7 septembre 2022 - Coll. C. R-V/Orange DANP
_____
Ci-dessus : vue d'ensemble du Commutateur temporel E10N1 - GAP 2 JAURÈS (AV06) avec ses bâtis peints en rouge, de 2ème génération (et de quelques CSE peints en gris de 1ère génération probablement raccordés initialement en URAD sur le Commutateur E10N1 - GAP 1 LADOUCETTE (PA63) entre Juin 1982 et Juillet 1990. )
Photographies C. R-V. - 14 septembre 2022 - Coll. C. R-V/Orange DANP
_____
Ci-dessus : vue d'ensemble du Commutateur temporel E10N1 - DÉFENSE 3 ET1 (CB53).
Photographies C. R-V. - 23 février 2023 - Coll. C. R-V/Orange DANP
_____
Ci-dessus : vue d'ensemble du Commutateur temporel E10N1 - DÉFENSE 4 ET2 (CB54).
Photographies C. R-V. - 23 février 2023 - Coll. C. R-V/Orange DANP
_____
Ci-dessus : vue d'ensemble du Commutateur temporel E10N1 - MANOSQUE E10N1 (PA55) avec ses bâtis peints en gris (et son bâti d'extension en rouge).
Photographies C. R-V. - 5 juillet 2023 - Coll. C. R-V/Orange DANP
_____
Ci-dessus : vue d'ensemble du Commutateur temporel E10N1 - BRIANÇON E10N1 (AV03) avec ses bâtis peints en gris.
Photographies C. R-V. - 18 juillet 2023 - Coll. C. R-V/Orange DANP
_____
Ci-dessus : vue d'ensemble du Commutateur temporel E10N1 – BORDEAUX MÉRIADECK 3 (BX93) avec ses bâtis peints en gris. Les caches anti-poussière sont absents.
Photographies C. R-V. - 25 juillet 2023 - Coll. C. R-V/Orange DANP
_____
Ci-dessus : vue d'ensemble du Commutateur temporel E10N1 – VAUVERT (NM34) avec ses bâtis peints en gris (et son bâti d'extension en rouge et brun).
Photographies C. R-V. – 1er août 2023 - Coll. C. R-V/Orange DANP
_____
Ci-dessus : vue d'ensemble du Commutateur temporel E10N1 – SAINT-GAUDENS 2 (TL07) avec ses bâtis peints en gris (et son bâti d'extension en rouge).
Photographies C. R-V. – 23 août 2023 - Coll. C. R-V/Orange DANP
_____
Ci-dessus : vue d'ensemble du Commutateur temporel E10N1 – SAINT-GIRONS 2 (TL58) avec ses bâtis peints en gris (et son bâti d'extension en rouge et brun).
Photographies C. R-V. – 23 août 2023 - Coll. C. R-V/Orange DANP
_____
Ci-dessus : vue d'ensemble du Commutateur temporel E10N1 – PAMIERS 2 (TL51) avec ses bâtis peints en gris (et son bâti d'extension en rouge).
Photographies C. R-V. – 23 août 2023 - Coll. C. R-V/Orange DANP
_____
Ci-dessus : vue d'ensemble du Commutateur temporel E10N1 – AJACCIO HÔTEL-DES-POSTES (CO22) avec ses bâtis peints en gris.
Photographies C. R-V. – 24 septembre 2023 - Coll. C. R-V/Orange DANP
_____
Ci-dessus : vue d'ensemble du Commutateur temporel E10N1 – AJACCIO LES SALINES 2 (CO07).
Photographies C. R-V. – 25 septembre 2023 - Coll. C. R-V/Orange DANP
_____

Ci-dessus : inauguration, en grande pompe à Privas (07), du Commutateur E10N1 - PRIVAS E10B (LY523/VL41) en présence de M. le Directeur Général des Télécommunications - Jacques Dondoux.
Photographies PTT - Janvier 1985 - Coll. Orange DANP
_____

Ci-dessus : vue d'ensemble du Commutateur temporel E10N1 "tardif " de 1987 - SAINT-BRIEUC RÉSISTANCE 4(CN54) avec ses bâtis peints en rouge (portes amovibles de protection retirées).
Photographie PTT - 22 octobre 1987 - Coll. C. R-V.
_____
Ci-dessus : Commutateur temporel E10N1 "tardif " de 1987 - SAINT-BRIEUC RÉSISTANCE 4 (CN54) avec ses bâtis peints en rouge.
Photographies PTT - 22 octobre 1987 - Coll. C. R-V.
_____


Ci-dessus : vue d'ensemble du Centre de Traitement des Informations de Saumur, équipé d'un ordinateur MITRA 225 (première époque), gérant plusieurs Commutateurs E10N1 des environs de cette ville.
Photographie PTT - 11 juin 1987 - Coll. Orange DANP
_____

Ci-dessus : vue d'ensemble d'un Centre de Traitement des Informations (seconde époque - époque moderne) de type OMC83, gérant plusieurs Commutateurs E10N1.
Photographie PTT - 24 août 1989 - Coll. C. R-V.
______

Ci-dessus : vue générale d'un Commutateur E10N1, à Puteaux. (Photographie : © C. Rizzo-Vignaud. PUTEAUX 6 ET4 (CC86)).
Nota : Puteaux 6 ET4 (CC86) est le 1er Commutateur d'Île-de-France et le 2ème de France à desservir des abonnés Numéris. Mis en service le 4 mai 1988 - hors service le 9 décembre 1999 - fabricant : CIT-Alcatel.
_____

Ci-dessus : vue détaillée des Multienregistreurs MR 30 du Commutateur E10N1 de Puteaux. (Photographie : © C. Rizzo-Vignaud. PUTEAUX 6 ET4 (CC86)).
_____

Ci-dessus : vue détaillée des Taxeurs TX 30 du Commutateur E10N1 de Puteaux. (Photographie : © C. Rizzo-Vignaud. PUTEAUX 6 ET4 (CC86)).
_____

Ci-dessus : vue partielle du Réseau de Connexion CX 30 du Commutateur E10N1 de Puteaux. (Photographie : © C. Rizzo-Vignaud. PUTEAUX 6 ET4 (CC86)).
_____

Ci-dessus : vue détaillée d'un Traducteur TR 30 et du Dérouleur de Bandes Magnétiques (Dispositif de Sauvegarde des Fichiers - DSF) du Commutateur E10N1 de Puteaux.
(Photographie : © C. Rizzo-Vignaud. PUTEAUX 6 ET4 (CC86)).
_____

Ci-dessus : vue du Coffre-Fort de réserve des Bandes Magnétiques de secours, servant notamment à faire redémarrer le Commutateur E10N1 - PUTEAUX 6 ET4 (CC86) en cas d'avarie logicielle massive et complète.
(Photographie C. R-V.)
_____

Ci-dessus : vue partielle de Concentrateur Spatial Électronique CSE 31 du Commutateur E10N1 de Puteaux, où sont reliés les abonnés au téléphone.
(Photographie : © C. Rizzo-Vignaud. PUTEAUX 6 ET4 (CC86)).
_____

Ci-dessus : vue arrière précâblée par wire-wrapping, très caractéristique des E10N1, technique utilisée dans les parties nobles des Commutateurs E10N1 (MR, MQ, TX, TR), tel celui de Puteaux. (Photographie : © C. Rizzo-Vignaud. PUTEAUX 6 ET4 (CC86)).
_____

Ci-dessus : vue arrière de Concentrateurs Spatiaux Électroniques CSE 31, les cartes étant liées par un système de connecteurs caractéristique des Commutateurs E10N1, tel celui de Puteaux.
(Photographie : © C. Rizzo-Vignaud. PUTEAUX 6 ET4 (CC86)).
_____

Ci-dessus : autre vue arrière de connecteurs caractéristique des Commutateurs E10N1, tel celui de Puteaux. (Photographie : © C. Rizzo-Vignaud. PUTEAUX 6 ET4 (CC86)).
_____
Pupitre Général de Visualisation (PGV), chargé de visualiser le fonctionnement normal ou en alarme des Unité de Raccordements d'Abonnés qu'elles soient locales ou distantes.
Il est formé :

Ci-dessus : découverte dans certains Commutateurs E10N1, d'un Pupitre Général de Visualisation (PGV). © Photographie C. R-V. Cas de LE CHESNAY A2 E10N1 (WD32 )
_____

Ci-dessus : vue d'un calculateur Mitra 225 à l'arrêt, rescapé, redécouvert en mars 2017 dans le centre téléphonique de Beaumont-sur-Oise (site où était aussi implanté jadis un Commutateur E10N1). Très surprenant qu'il n'ait point été envoyé à la casse. © Photographie C. R-V.
_____

Ci-dessus : vue en position ouverte (maintenance) d'une "Lessiveuse" SEMS modèle UD50, à l'arrêt et rescapée, du CTI de Beaumont-sur-Oise. (© Photographie C. R-V, mars 2017)
_____
Concernant les Services Confort : le système E10N1 supporte les services du Mémo Appel (Réveil), du Transfert d'Appel Local (à l'intérieur de la même Circonscription de Taxe), du Signal d'Appel et de la Conversation à 3 depuis le 1er juin 1984 ; mais les ressources matérielles disponibles ne permettent pas de pouvoir accueillir tous les candidats à la souscription de ces services.
Le Transfert d'Appel National est disponible sur la totalité du parc des Commutateurs E10N1 depuis le 1er février 1988.
_____
_____
Le système E10N1 ne pouvait fournir qu'à un maximum de 15% des abonnés lui étant raccordés le nouveau service de Présentation de l'Identité du Demandeur (PID) mis en service en France depuis le 2 septembre 1997 en France Métropolitaine et le 1er octobre 1997 dans les DOM. (Limitation qui a également accéléré la suppression de ce système pourtant très fiable)
_____
En dehors de l'Europe, le système E10N1 est connu sous la dénomination OCB-181 (Organe de Commande type B, version 1, mis en service en 1981).
Sous-famille MT -Matrice Temporelle- (licence Thomson-CSF Telephone), mise en développement à partir de 1975 par la société LMT à l'insu de sa maison mère ITT dès 1971 ;

Existent les types suivants :
MT20, Temporel de seconde génération, type à grande capacité d’écoulement de trafic, commandé en Octobre 1977 par l'Administration des Télécommunications. Le système MT20 est un système de commutation à commande centralisée. Dans son architecture générale, le système MT20 est en fait le descendant direct du système MÉTACONTA 11F semi-électronique spatial, dont son Réseau de ConneXion (RCX) est devenu 100% électronique temporel.
L'architecture du système temporel MT20 est bâtie sur quatre niveaux.
- Le premier niveau est constitué par une Unité de Commande Dupliquée (UCD) basée sur un ensemble de deux calculateurs fonctionnant en service normal en partage de charge (pourvue de deux processeurs de type MU320 de technologie à circuits intégrés ECL, ayant tous été remplacés entre 1990 et 1993 par le type MU321 deux fois plus puissant puis, par le type MU322 à partir de 1995, puis enfin pour certains commutateurs MT20, par des processeurs MU323 avec nouvelle amélioration de 30% des performances à partir de 2003 ).
- Le second niveau est constitué par l'Unité de SIgnalisation (USI)
- Le troisième niveau est l'Unité de ConneXion (UCX). Elle comprend notablement le Réseau de ConneXion (RCX) d'un commutateur MT20. L'Unité de ConneXion (UCX) a pour rôle de connecter, grâce à des organes dénommés Groupes Temporels (GT), deux intervalles de temps quelconques appartenant à des liaisons numériques MIC quelconques. Deux types sont possibles :
- Le quatrième niveau équipé des cartes de circuits périphériques (les joncteurs chargés de communiquer avec les autres centres de transit).
- Dans le cas des Commutateurs MT20 utilisés en Centres internationaux, à une époque où certaines liaisons internationales n'étaient pas encore toutes automatisées, il était adjoint une Unité de Raccordement des Opératrices (URO) permettant de connecter 30 postes d'Opératrices manuelles à chaque MT20CI.
_____
Utilisé massivement en centre de transit interurbain, notés MT20TN pour Transit National, ainsi qu'en Centre International, notés MT20CI, et à la marge en centre téléphonique pour les abonnés situés dans leur périmètre géographique voisin.
_____
Concernant spécifiquement les Commutateurs MT20 utilisés en Centres Internationaux :
_____
Concernant spécifiquement les Commutateurs MT20 utilisés en Centres de Transit National :
_____
Ci-contre:
Signalétique typique de Commutateur MT20. (Collection C. R-V.)

(en l'espèce : Commutateur BONDEVILLE 1 CTU (RU71) ; prise de son face aux deux Calculateurs à 1 mètre. (c) C. R-V. le 12 juin 2017.)
_____

Ci-dessus : salle des Calculateurs centralisés LCT 3202 du Commutateur prototype MT20 - AUBERVILLIERS 1 CTU (RU01).
Photographie PTT - 10 juillet 1979 - Coll. Orange DANP
_____

Ci-dessus : salle de Connexion du Commutateur prototype MT20 - AUBERVILLIERS 1 CTU (RU01).
Photographie PTT - 10 juillet 1979 - Coll. Orange DANP
_____

Ci-dessus : Réseau de Connexion du Commutateur Prototype MT20 - AUBERVILLIERS 1 CTU (RU01).
Photographie Thomson CSF - 1981 - Coll. Orange DANP
_____
Ci-dessus : différents organes du Commutateur Prototype MT20 - AUBERVILLIERS 1 CTU (RU01).
Photographies Thomson CSF - 1981 - Coll. Orange DANP
_____

Ci-dessus : visite du Commutateur prototype MT20 - AUBERVILLIERS CTU1 (RU01) alors en expérimentation, par M. le Directeur des Télécommunications de la République Arabe Syrienne (mains croisées).
Photographie PTT - 14 mars 1979 - Coll. Orange DANP
_____

Ci-dessus : technicienne tenant une carte devant le Commutateur Prototype MT20 - AUBERVILLIERS 1 CTU (RU01).
Photographie PTT - 1980 - Coll. C. R-V.
_____

Ci-dessus : assemblage et essais des cœurs de chaîne de Commutateurs MT20 (ou MT25), équipés de calculateurs MU320, en 1982, à l'usine Thomson-CSF de Nantes (ou Laval).
Photographie Thomson-CSF - Février 1983 - Coll. Orange DANP.
______

Ci-dessus : vue d'un Commutateur MT20 équipé de Calculateurs MU320.
Photographie Thomson-CSF - circa 1983 - Coll. Orange DANP
_____

Ci-dessus : croquis d'implantation type d'un Commutateur MT20.
_____

Ci-dessus : M. le Ministre des PTT - Louis Mexandeau en pleine présentation de la Commutation Temporelle aux 30 ministres des PTT du monde entier venus pour l'inauguration du Commutateur de Transit MT20L - AMIENS CAMPUS (AM00) le 1er juillet 1982.
Photographie PTT - 1er juillet 1982 - Coll. C. R-V.
_____

Ci-dessus : le 11 mai 1984, M. le Ministre des PTT - Louis Mexandeau (collier de barbe) en visite dans la salle du Commutateur de Transit MT20 de Quimper - QUIMPER KERFEUNTEUN CTT1 CTS3 (QU00), pour son inauguration officielle, écoute les explications délivrées par M. le Chef du Centre Principal d'Exploitation - Jean-Yves Le Gall. Il est accompagné par M. le Maire de Quimper - Bernard Poignant (moustache).
Photographie DRT Bretagne - 11 mai 1984 - Coll. C. R-V.
_____

Ci-dessus : le 11 mai 1984, M. le Ministre des PTT - Louis Mexandeau (collier de barbe) inaugure à la fois la nouvelle Direction Opérationnelle des Télécommunications de Quimper ainsi que le nouveau Commutateur MT20 de Quimper.
Photographie DRT Bretagne - 11 mai 1984 - Coll. C. R-V.
_____
Ci-dessus : le 5 juillet 1984, M. le Ministre des PTT - Louis Mexandeau (collier de barbe) inaugure le nouveau Commutateur MT20 de Poitiers Pont-Achard.
Photographies PTT - 5 juillet 1984 - Coll. Orange DANP.
_____
Ci-dessus : le Commutateur MT20TN BONNE-NOUVELLE CTU1 (RU15).
Photographies PTT - 1983 - Coll. Orange DANP
_____
Ci-dessus : Commutateur MT20 sis au Centre Téléphonique Massy C, à Massy (91).
Photographies C. R-V. - 8 novembre 2021 - Coll. C. R-V/Orange DANP
_____
Ci-dessus : premier Commutateur MT20 sis au Centre Téléphonique de Transit de Saint-Germain-en-Laye (78).
Photographies C. R-V. - 2 février 2022 - Coll. C. R-V/Orange DANP
_____
Ci-dessus : second Commutateur MT20 sis au Centre Téléphonique de Transit de Saint-Germain-en-Laye (78).
Photographies C. R-V. - 27 mai 2022 - Coll. C. R-V/Orange DANP
_____

Ci-dessus : vue générale du Commutateur MT20 sis au Centre Téléphonique Turbigo - Bondeville, à Paris (75), peu avant sa mise à l'arrêt définitive.
Photographie C. R-V. - 2 août 2017 - Coll. C. R-V.
_____
Ci-dessus : Commutateur MT20 - sis au Centre Téléphonique Bondeville, à Paris.
Photographies C. R-V. - 25 janvier 2022 - Coll. C. R-V/Orange DANP
_____
Ci-dessus : Commutateur MT20 - sis au Centre Téléphonique du Plessis-Bouchard (95).
Photographies C. R-V. - 28 février 2022 - Coll. C. R-V/Orange DANP
_____

Ci-dessus : vue des Calculateurs MU323 équipant le Commutateur MT20 - PONCELET CTS2 ARR. (RT43).
(Photographie :© C. R-V.)
_____
Ci-dessus : troisième Commutateur MT20 sis au Centre Téléphonique de Transit Poncelet, à Paris (75).
Photographies C. R-V. - 10 janvier 2022 - Coll. C. R-V/Orange DANP.
_____
Ci-dessus : deuxième Commutateur MT20 sis au Centre Téléphonique de Transit Poncelet, à Paris (75).
Photographies C. R-V. - 10 janvier 2022 - Coll. C. R-V/Orange DANP.
_____
Ci-dessus : Commutateur MT20 sis au Centre Téléphonique de Transit de Neuilly-sur-Marne (93).
Photographies C. R-V. - 7 juin 2022 - Coll. C. R-V/Orange DANP.
_____
Ci-dessus : second Commutateur MT20 du Centre Téléphonique de Transit d'Aubervilliers (93).
Photographies C. R-V. - 20 juin 2022 - Coll. C. R-V/Orange DANP.
_____
Ci-dessus : quatrième Commutateur MT20 du Centre Téléphonique de Transit d'Aubervilliers (93).
Photographies C. R-V. - 20 juin 2022 - Coll. C. R-V/Orange DANP.
_____
Ci-dessus : premier Commutateur MT20 sis au Centre Téléphonique de Transit Montsouris, à Paris (75).
Photographies C. R-V. - 18 juin 2022 - Coll. C. R-V/Orange DANP.
_____
Ci-dessus : troisième Commutateur MT20 sis au Centre Téléphonique de Transit Montsouris, à Paris (75).
Photographies C. R-V. - 27 juin 2022 - Coll. C. R-V/Orange DANP.
_____
Ci-dessus : second Commutateur MT20 sis au Centre Téléphonique de Transit Montsouris, à Paris (75).
Photographies C. R-V. - 18 juin 2022 - Coll. C. R-V/Orange DANP.
_____
Ci-dessus : premier Commutateur MT20 sis au Centre Téléphonique de Transit Marseille Nédélec, à Marseille (13).
Photographies C. R-V. - 11 juillet 2022 - Coll. C. R-V/Orange DANP.
_____
Ci-dessus : deuxième Commutateur MT20 sis au Centre Téléphonique de Transit Marseille Saint-Mauront, à Marseille (13).
Photographies C. R-V. - 18 juillet 2022 - Coll. C. R-V/Orange DANP.
_____
Ci-dessus : Commutateur MT20 sis au Centre Téléphonique Toulon Daveluy, à Toulon (83) -
Photographies C. R-V. - 26 juillet 2022 - Coll. C. R-V/Orange DANP.
_____
Ci-dessus : Commutateur MT20 sis au Centre Téléphonique de Transit Montpellier Croix-d'Argent, Montpellier (34).
Photographies C. R-V. - 5 août 2022 - Coll. C. R-V/Orange DANP.
_____
Ci-dessus : Commutateur MT20 sis au Centre Téléphonique de Transit Nice Berlioz, à Nice (06).
Photographies C. R-V. - 12 décembre 2022 - Coll. C. R-V/Orange DANP.
_____
Ci-dessus : Commutateur MT20 sis au Centre Téléphonique Boulogne, à Boulogne-Billancourt (92).
Photographies C. R-V. - 14 janvier 2023 - Coll. C. R-V/Orange DANP.
_____
Ci-dessus : Commutateur MT20 sis au Centre Téléphonique de Transit de Villeneuve-Saint-Georges (94) - limitrophe avec Valenton.
Photographies C. R-V. - 11 février 2023 - Coll. C. R-V/Orange DANP.
_____
Ci-dessus : Commutateur MT20 sis au Centre Téléphonique de Transit d'Éragny-sur-Oise (95).
Photographies C. R-V. - 20 février 2023 - Coll. C. R-V/Orange DANP.
_____
Ci-dessus : second Commutateur MT20 sis au Centre Téléphonique Lille Boitelle, à Lille (59).
Photographies C. R-V. - 27 février 2023 - Coll. C. R-V/Orange DANP.
_____
Ci-dessus : 1er Commutateur MT20 sis au Centre Téléphonique de Transit Saint-Lambert, à Paris (75).
Photographies C. R-V. – 14 juin 2023 - Coll. C. R-V/Orange DANP.
_____
Ci-dessus : 2ème Commutateur MT20 sis au Centre Téléphonique de Transit Saint-Lambert, à Paris (75).
Photographies C. R-V. – 14 juin 2023 - Coll. C. R-V/Orange DANP.
_____
Ci-dessus : Commutateur MT20 sis au Centre Téléphonique de Transit Montpellier Montcalm, à Montpellier (34).
Photographies C. R-V. – 23 juin 2023 - Coll. C. R-V/Orange DANP.
_____
Ci-dessus : 1er Commutateur MT20 sis au Centre Téléphonique de Transit Bordeaux Mériadeck, à Bordeaux (33).
Photographies C. R-V. - 25 juillet 2023 - Coll. C. R-V/Orange DANP.
_____
Ci-dessus : 2ème Commutateur MT20 sis au Centre Téléphonique de Transit Bordeaux Mériadeck, à Bordeaux (33).
Photographies C. R-V. - 25 juillet 2023 - Coll. C. R-V/Orange DANP.
_____
Ci-dessus : Commutateur MT20 sis au Centre Téléphonique de Transit Bordeaux Château d’Eau (33).
Photographies C. R-V. - 27 juillet 2023 - Coll. C. R-V/Orange DANP.
_____
Ci-dessus : Commutateur MT20 en cours de démontage, sis au Centre Téléphonique de Transit Toulouse Ferrié, à Toulouse (31).
Photographies C. R-V. – 22 août 2023 - Coll. C. R-V/Orange DANP.
_____

Ci-dessus : PUpitre de MAintenance (PUMA) associé jadis à tout Commutateur MT20
Photographie C. R-V. - 2 août 2017 - Coll. C. R-V.
_____

Ci-dessus, Mercure 320 : vue d'un calculateur de MT20 (ou MT25), modèle MU320.
(Photographie Thomson-CSF 1981)
_____

Ci-dessus, Mercure 320 : vue d'un calculateur de MT20 (ou MT25), modèle MU320.
Photographie C. R-V. - 21 juillet 2022 - Coll. C. R-V/Orange DANP
_____

Ci-dessus, Mercure 322 : vue d'un calculateur de MT20, modèle MU322 reconnaissable car il est constitué de 2 cartes sur l'alvéole du haut et d'1 seul bloc d'alimentation situé en haut à droite.
Photographie C. R-V. - 2 août 2017 - Coll. C. R-V.
_____

Ci-dessus, Mercure 323 : vue d'un calculateur de Commutateur MT20, modèle MU323 reconnaissable car il est constitué de 4 cartes sur l'alvéole du haut et d'1 seul bloc d'alimentation situé en haut à droite.
(Photographie :© C. R-V. Paris Saint-Lambert CTS2 (RT74))
Nota : à la différence des MU320, MU321 puis MU322, le calculateur MU323, le plus perfectionné, n'a été implanté que sur certains Commutateurs de transit MT20.
_____


Ci-dessus : il s'agit d'une console PEM. (Position d'Essai Manuel). (Commutateur MT20TN CTU de Boulogne-Billancourt 1 CTU1 (RP26)) - Photographies : © C. R-V.

Ci-dessus : rare vue datant d'Avril 1992, présentant une utilisation en situation réelle, par le confrère debout, d'une console PEM d'un MT20 utilisé en Centre International Automatique à Reims. Photographie X.
_____

Ci-dessus : salle de supervision et d'exploitation des 3 Commutateurs MT20CIA du Centre International de Bagnolet. Visibles, les consoles PEM des Commutateurs MT20CIA.
_____

Ci-dessus : Salle de Supervision des liaisons du Trafic International du Centre Paris-Bagnolet, en Septembre 1998 (avec mur d'écrans plats).
Photographie France Télécom - Coll. C. R-V.
_____
MT25, Temporel de seconde génération, commandé le 20 avril 1979 par l'Administration des Télécommunications, robuste mais ayant été très long à mettre au point, il est directement dérivé du système MT20 dans son architecture, à laquelle il a été adjoint des Unités de Raccordement d'Abonnés où sont connectées des cartes de 8 abonnés (en lieu et place des circuits de jonctions intercentre du MT20). Le logiciel de fonctionnement du système MT25 est lui aussi entièrement remanié par rapport à celui du système MT20. Le système MT25 est un système de commutation téléphonique à commande centralisée. Tout comme le système MT20, son architecture est construite sur quatre niveaux :
- Le premier niveau est constitué par une Unité de Commande Dupliquée (UCD) basée sur un ensemble de deux calculateurs fonctionnant en service normal en partage de charge (pourvue de deux processeurs de type MU320 (nom complet : Mercure 320) de technologie à circuits intégrés ECL, ayant tous été remplacés entre l'année 1989 et l'année 1997 pour les 11 tous derniers par le type MU321 deux fois plus puissant puis, sur option, par le type MU322 au fil des modernisations à partir de 1995 : depuis 2014, les MT25 en service sont tous pourvus de processeurs MU322 qui sont aussi les plus fiables). Le système MT25 est effectivement essentiellement centralisé, car les communications sont toujours établies puis toujours coupées sur l'ordre exclusif de l'Unité de Commande Dupliquée.
- Le second niveau est constitué par l'Unité de SIgnalisation (USI)
- d'une part constituée de Signaleurs (SI) équipés de microcalculateurs MU29 (Mercure 29) chargés d'effectuer les tâches non répétitives comme la surveillance et le test des équipements, qui sont constitués par des microprocesseurs AMD2901.
- d'autre part constituée des processeurs Périphériques Programmés de Signalisation (PPS) chargés d'effectuer la majeure partie des tâches simples et répétitives, entre l'Unité de Commande Dupliquée (UCD), le Réseau de ConneXion (RCX) et les liaisons connectées avec les commutateurs distants, pour assurer notamment l'échange des signaux de ligne (tonalités) et d'enregistreur servant à acheminer les appels.
- Le troisième niveau est constitué de l'Unité de ConneXion (UCX). Elle comprend notablement le Réseau de ConneXion (RCX) d'un commutateur MT25.
L'Unité de ConneXion (UCX) a pour rôle de connecter, grâce à des organes dénommés Groupes Temporels (GT), 24 GT maximum, deux intervalles de temps quelconques appartenant à des liaisons numériques MIC quelconques. Deux types sont possibles :
- soit de type purement temporel TT (un étage d'entrée temporel, un étage de sortie temporel) pour une capacité maximale de raccordement de 512 MIC. (Nota : une Unité de Commande Dupliquée (UCD) composée de calculateurs MU320 ne peut supporter qu'un Réseau de ConneXion (RCX) de 512 liaisons MIC au maximum.)
- soit de type Temporel-Spatial-Spatial-Temporel pour une capacité pouvant s'étendre jusqu'à 2048 MIC. (Avec calculateurs MU321 ou MU322 uniquement). Dans ce cas, pour maintenir l'accessibilité totale du réseau agrandi, le brassage de ces différents Groupes Temporels (GT) entre eux est alors assuré par l'organe supplémentaire de Sélection de Groupe (SG). Les Sélecteurs de Groupes (SG) sont en fait des matrices numériques spatiales de commutation dites "supermultiplex". Ce Réseau de ConneXion (RCX), de type temporel est formé de 4 étages : un étage d'entrée temporel, un étage de sortie temporel, mais au milieu de ces 2 étages, 2 étages spatiaux réalisés en technologie numérique. Le Réseau de Connexion TSST est une adaptation qui a été utilisée afin de pouvoir assurer à moindre frais et à moindres difficultés un brassage optimal entre les voies entrantes et sortantes.
- Le quatrième niveau est constitué par les Unités de Raccordement d'Abonnés (URA).
Les baies retenues initialement pour les Commutateurs MT25 sont de type URA 2G. Elles ont été développées de Juillet 1975 à Septembre 1978 par l’Association des Ouvriers en Instruments de Précision (AOIP) en collaboration avec la Société Anonyme de Télécommunications (SAT) filiale du groupe Philips et adoptées officiellement par l’Administration en Janvier 1979.
Une URA 2G est un Concentrateur Temporel, à interface entrée/sortie analogique vis-à-vis de ces abonnés, connectée au Cœur De Chaîne par l'intermédiaire de 2, 3 ou 4 liaisons numériques MIC de 30 voies numériques pour chaque MIC, le nombre de MIC variant suivant le nombre d'abonnés raccordés sur ladite URA 2G ainsi que la densité de trafic statistique à écouler.
La plupart des baies équipées de type URA 2G ont été démontées à la fin 2000, et remplacées par des baies de CSN étant donné que les URA 2G ne supportaient pas l'arrivée de certains nouveaux services comme la Présentation de l'Identité du Demandeur (PID).
Les MT25 sont équipés, dès 1983, de baies de cartes de raccordement d'abonnés de type URA 2G (Unités de Raccordement d’Abonnés de 2eme Génération). Chaque carte comprend 16 abonnés analogiques (les cartes d'abonnés discriminés TTX avec retransmission des impulsions de taxation à domicile 12KHz comprennent seulement 8 abonnés)
Les MT25 sont équipés à partir de 1987, soit de baies de type URA 2G, soit de baies de type CSN (Centre Satellite Numérique), plus perfectionnées.
(Nota : les équipements CSN sont les mêmes que ceux des Commutateurs de la famille E10. Ils ont été conçus par Alcatel pour être également compatibles avec les MT25, ce qui a permis de prolonger la vie des Commutateurs MT25, en pouvant offrir les services modernes aux abonnés comme la Présentation de l'Identité du Demandeur. Mais les CSN rendus compatibles permirent à Alcatel, ayant entre-temps racheté à Thomson-CSF sa branche Commutation Publique, de cesser la conception de l'Unité de Raccordement Numérique (URN) mise en étude par Thomson-CSF peu de temps avant cette absorption...)
- Chaque URA 2G peut héberger 1023 abonnés analogiques ordinaires. (la position numéro zéro ne pouvant être attribuée.)
-Chaque URA 2G peut héberger 511 abonnés analogiques discriminés.
- Un Commutateur MT25 à Réseau de ConneXion TT peut recevoir jusqu'à 15 URA 2G.
-Un Commutateur MT25 à Réseau de Connexion TSST peut recevoir jusqu'à 64 URA 2G.
- Chaque CSN peut héberger 5120 abonnés analogiques.
_____
Ci-dessous : cas des cartes d'abonnés des URA 2G.
Chaque URA2G peut recevoir jusqu'à 64 cartes d'abonnés maximum.

Ci-dessus : vue d'une alvéole d'URA2G et d'une Carte d'Équipements d'Abonnés Ordinaires dans un Commutateur MT25.
Photographie PTT - 1983 - Coll. C. R-V.
_____

Ci-dessus : Carte d'Équipements d'Abonnés Ordinaires d'un Commutateur MT25 (référence EAO5) où sont raccordés 16 abonnés analogiques.
Coll. C. R-V.
_____

Ci-dessus : Carte d'Équipements d'Abonnés Discriminés d'un Commutateur MT25 (Référence EAD2) recevant à domicile les impulsions de taxe à 12KHz où sont raccordés 8 abonnés analogiques discriminés seulement.
Coll. C. R-V.
_____

Ci-dessus : Carte d'Équipements d'Abonnés et ligne Spécialisée d'un Commutateur MT25 (référence EAS2) où sont raccordées 15 lignes.
Coll. C. R-V.
_____
Ci-contre:
Signalétique typique de Commutateur MT25. (Collection C. R-V.)


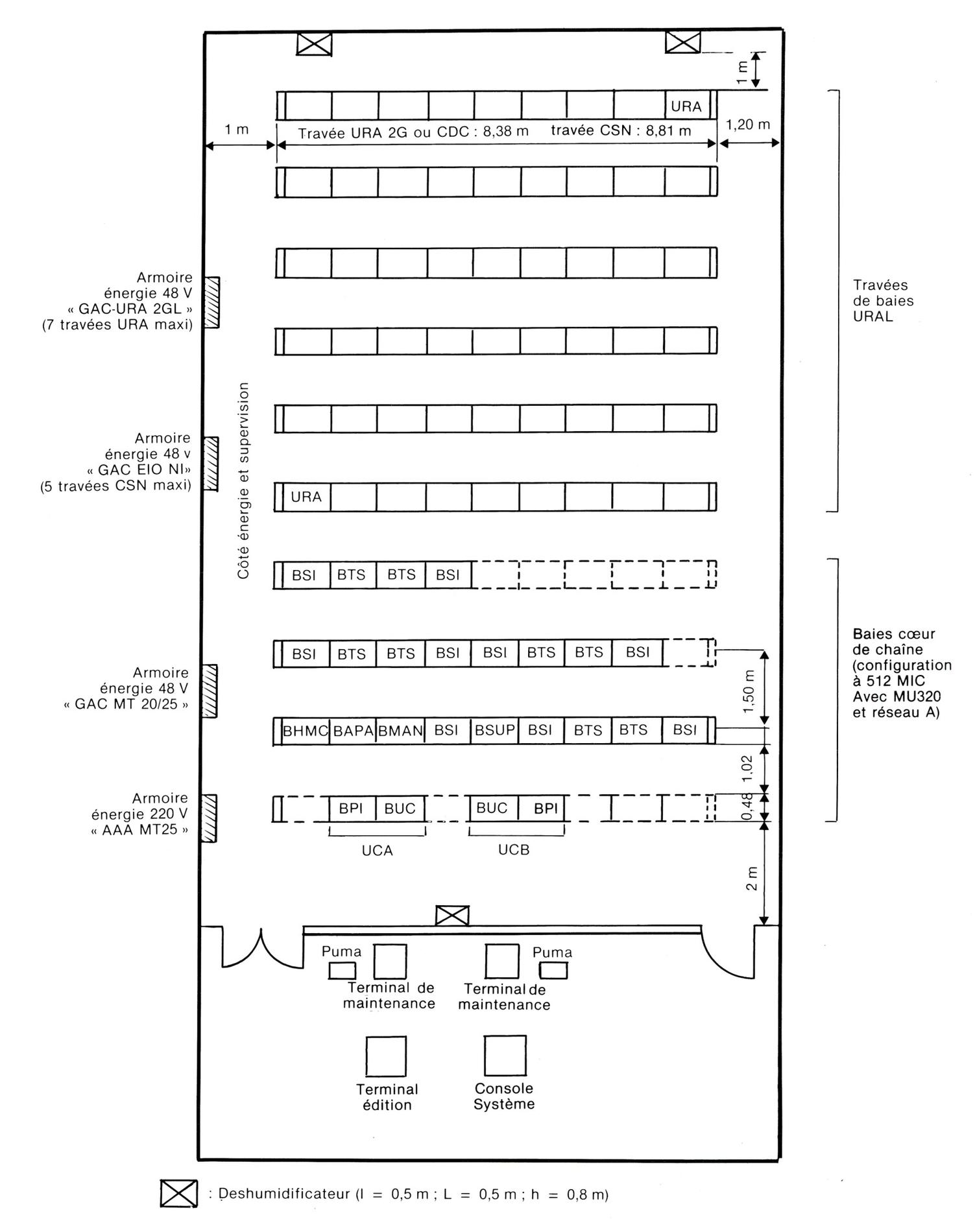
Ci-dessus : croquis d'implantation type d'un Commutateur MT25 à Réseau de Connexion Temporel Temporel (512 MIC) (Configuration de base, la plus ancienne)
_____
(en l'espèce : Commutateur JEMMAPES 2 ET2 (AD06) ; prise de son face aux deux Calculateurs à 1 mètre. (c) C. R-V. le 15 juin 2017.)
_____

Ci-dessus : vue d'ensemble du cœur de chaîne du Commutateur MT25 captif de Paris-Cévennes ; initialement pourvu de deux Dérouleurs de Bandes Magnétiques (DBM) situés entre les 2 Calculateurs.
Nota : Commutateur MT25 équipé de Calculateurs MU321.
Photographie PTT - 14 décembre 1989 - Coll. C. R-V.
_____

Ci-dessus : vue de détail des deux Calculateurs MU321 et des Dérouleurs de Bandes Magnétiques (DBM) de ce même Commutateur MT25.
Photographie PTT - 14 décembre 1989 - Coll. C. R-V.
_____

Ci-dessus : vue générale du premier Commutateur MT25 mis en service dans le monde, à Paris (75).
Photographie Thomson-CSF - Mai 1983 - Coll. Orange DANP
_____

Ci-dessus : Technicien en cours d'intervention sur une Unité de Raccordement d'Abonnés du Commutateur PHILIPPE-AUGUSTE 2 ET1 (AD32).
Photographie PTT - Décembre 1983 - Coll. Orange DANP
_____

Ci-dessus : Technicien en intervention sur un Télétype, en conversation avec le Commutateur MT25 - PHILIPPE-AUGUSTE 2 ET1 (AD32).
Photographie PTT - Décembre 1983 - Coll. Orange DANP
_____

Ci-dessus : M. le Ministre-délégué aux PTT de passage au Commutateur de Paris PHILIPPE-AUGUSTE 2 ET1 (AD32), dans la nuit, après le passage à la Nouvelle Numérotation Téléphonique à 8 chiffres.
Photographie PTT - 25 octobre 1985 - Coll. Orange DANP
_____
Ci-dessus : second Commutateur MT25 sis au Centre Téléphonique Philippe-Auguste, à Paris (75).
Photographies C. R-V. - 14 janvier 2022 - Coll. C. R-V/Orange DANP
_____
Ci-dessus : 1er Commutateur MT25 sis au Centre Téléphonique Tuileries, à Paris (75).
Photographies C. R-V. – 20 janvier 2022 - Coll. C. R-V/Orange DANP
_____
Ci-dessus : 2ème Commutateur MT25 sis au Centre Téléphonique Tuileries, à Paris (75).
Photographies C. R-V. – 20 janvier 2022 - Coll. C. R-V/Orange DANP
_____
Ci-dessus : 3ème Commutateur MT25 sis au Centre Téléphonique Tuileries, à Paris (75).
Photographies C. R-V. – 20 janvier 2022 - Coll. C. R-V/Orange DANP
_____
Ci-dessus : Commutateur MT25 sis au Centre Téléphonique Berny, à Antony (92).
Photographies C. R-V. - 28 septembre 2021 - Coll. C. R-V/Orange DANP
_____
Ci-dessus : Commutateur MT25 sis au Centre Téléphonique Berny, à Antony (92).
Photographies C. R-V. - 18 janvier 2022 - Coll. C. R-V/Orange DANP
_____

Ci-dessus, derrière les vitres : les deux Calculateurs Centralisés du Commutateur MT25 sis à Pantin (93).
Photographie PTT - 25 octobre 1985 - Coll. Orange DANP
_____

Ci-dessus : salle d'exploitation très animée le soir du passage à la Nouvelle Numérotation à 8 chiffres du Commutateur MT25 - VILLETTE 3 ET1 (sis à Pantin).
Photographie - 25 octobre 1985 - Coll. Orange DANP
_____
Ci-dessus : Commutateur MT25 sis au Centre Téléphonique Plaisir A, à Plaisir (78).
Photographies C. R-V. - 14 juin 2022 - Coll. C. R-V/Orange DANP
_____

Ci-dessus : technicien de commutation devant la baie Horloge (HMC01) du Commutateur MT25 sis au Centre Téléphonique Turbigo, à Paris (75).
Photographie PTT - 26 janvier 1988 - Coll. C. R-V.
_____
Ci-dessus : Commutateur MT25 sis au Centre Téléphonique Turbigo, à Paris (75).
Photographies C. R-V. - 25 janvier 2022 - Coll. C. R-V/Orange DANP
_____
Ci-dessus : premier Commutateur MT25 sis au Centre Téléphonique Masséna, à Paris (75).
Photographies C. R-V - 29 septembre 2021 - Coll. C. R-V/Orange DANP
_____
Ci-dessus : Commutateur MT25 sis au Centre Téléphonique Diderot, à Paris (75).
Photographies C. R-V. - 5 janvier 2022 - Coll. C. R-V/Orange DANP
_____
Ci-dessus : Commutateur MT25 sis au Centre Téléphonique Murat, à Paris (75).
Photographies C. R-V. - 6 janvier 2022 - Coll. C. R-V/Orange DANP
_____

Ci-dessus : vue partielle du premier Commutateur MT25 sis au Centre Téléphonique Beaujon, à Paris (75).
Photographie C. R-V. - 28 janvier 2016 - C. R-V.
_____

Ci-dessus : 3 baies de Signaleurs du Commutateur MT25 - BEAUJON 3 ET1 (AB33).
Photographie C. R-V. - 28 janvier 2016 - C. R-V.
_____
Ci-dessus : premier Commutateur MT25 sis au Centre Téléphonique Beaujon, à Paris (75).
Photographies C. R-V. - 10 janvier 2022 - Coll. C. R-V/Orange DANP
_____
Ci-dessus : Commutateur MT25 sis au Centre Téléphonique Daguerre, au Perreux-sur-Marne (94).
Photographies C. R-V. - 29 avril 2022 - Coll. C. R-V/Orange DANP
_____
Ci-dessus : Commutateur MT25 sis au Centre Téléphonique de Montfermeil (93).
Photographies C. R-V. - 21 avril 2022 - Coll. C. R-V/Orange DANP
_____
Ci-dessus : Commutateur MT25 sis au Centre Téléphonique de Chelles (77).
Photographies C. R-V. - 15 avril 2022 - Coll. C. R-V/Orange DANP
_____
Ci-dessus : Commutateur MT25 sis au Centre Téléphonique Champigny, à Champigny-sur-Marne (94).
Photographies C. R-V. - 2 mars 2022 - Coll. C. R-V/Orange DANP
_____
Ci-dessus : Commutateur MT25 sis au Centre Téléphonique de Saint-Ouen-sur-Seine (93).
Photographies C. R-V. - 14 février 2022 - Coll. C. R-V/Orange DANP
_____
Ci-dessus : Commutateur MT25 sis au Centre Téléphonique Bures, à Bures-sur-Yvette (91).
Photographies C. R-V. - 11 février 2022 - Coll. C. R-V/Orange DANP
_____
Ci-dessus : Commutateur MT25 sis au Centre Téléphonique de Longjumeau (91).
Photographies C. R-V. - 11 février 2022 - Coll. C. R-V/Orange DANP
_____
Ci-dessus : Commutateur MT25 sis au Centre Téléphonique Chevilly, à Chevilly-Larue (94).
Photographies C. R-V. - 9 février 2022 - Coll. C. R-V/Orange DANP
_____
Ci-dessus : Commutateur MT25 sis au Centre Téléphonique Rameau, à Villejuif (94).
Photographies C. R-V. - 4 février 2022 - Coll. C. R-V/Orange DANP
_____
Ci-dessus : Commutateur MT25 sis au Centre Téléphonique de Sartrouville (78).
Photographies C. R-V. - 31 janvier 2022 - Coll. C. R-V/Orange DANP
_____
Ci-dessus : second Commutateur MT25 sis au Centre Téléphonique Alésia, à Montrouge (92).
Photographies C. R-V. - 26 janvier 2022 - Coll. C. R-V/Orange DANP
_____
Ci-dessus : premier Commutateur MT25 sis au Centre Téléphonique Alésia, à Montrouge (92).
Photographies C. R-V. - 26 janvier 2022 - Coll. C. R-V/Orange DANP
_____
Ci-dessus : Commutateur MT25 sis au Centre Téléphonique Péreire, à Levallois-Perret (92).
Photographies C. R-V. - 15 janvier 2022 - Coll. C. R-V/Orange DANP
_____
Ci-dessus : Commutateur MT25 sis au Centre Téléphonique de Bougival (78).
Photographies C. R-V. - 19 octobre 2021 - Coll. C. R-V/Orange DANP
_____
Ci-dessus : Commutateur MT25 sis au Centre Téléphonique de Bois d'Arcy (78).
Photographies C. R-V. - 6 octobre 2021 - Coll. C. R-V/Orange DANP
_____
Ci-dessus : Commutateur MT25 sis au Centre Téléphonique Charlebourg, à La Garenne-Colombes (92).
Photographies C. R-V. - 16 septembre 2021 - Coll. C. R-V/Orange DANP
_____
Ci-dessus : Commutateur MT25 sis au Centre Téléphonique Charlebourg, à La Garenne-Colombe (92)
Photographies C. R-V. – 30 mai 2023 - Coll. C. R-V/Orange DANP
_____
Ci-dessus : Commutateur MT25 sis au Centre Téléphonique du Vésinet (78).
Photographies C. R-V. - 11 octobre 2021 - Coll. C. R-V/Orange DANP
_____
Ci-dessus : Commutateur MT25 sis au Centre Téléphonique Massy A, à Massy (91).
Photographies C. R-V. - 8 novembre 2021 - Coll. C. R-V/Orange DANP
_____
Ci-dessus : Commutateur MT25 sis au Centre Téléphonique de Lognes (77).
Photographies C. R-V. - 13 septembre 2021 - Coll. C. R-V/Orange DANP
_____

Ci-dessus : de passage au Commutateur MT25 sis au Centre Téléphonique de Bondy (93).
(Photographie : © C. R-V.)
Ci-dessus : Commutateur MT25 sis au Centre Téléphonique de Bondy (93).
Photographies C. R-V. - 9 novembre 2021 - Coll. C. R-V/Orange DANP
_____
Ci-dessus : vues du Commutateur MT25 sis au Centre Téléphonique Montmartre, à Paris (75).
Photographies C. R-V. - 30 janvier 2022 - Coll. C. R-V/Orange DANP
_____
Ci-dessus : Commutateur MT25 sis au Centre Téléphonique de Sevran (93).
Photographies C. R-V. - 10 novembre 2021 - Coll. C. R-V/Orange DANP
_____
Ci-dessus : Commutateur MT25 sis au Centre Téléphonique de Noisy-le-Grand (93).
Photographies C. R-V. - 30 mai 2022 - Coll. C. R-V/Orange DANP
_____
Ci-dessus : Commutateur MT25 sis au Centre Téléphonique de Neuilly-sur-Marne (93).
Photographies C. R-V. - 7 juin 2022 - Coll. C. R-V/Orange DANP
_____
Ci-dessus : Commutateur MT25 sis au Centre Téléphonique de Tremblay-lès-Gonesse (93).
Photographies C. R-V. - 7 juin 2022 - Coll. C. R-V/Orange DANP
_____
Ci-dessus : Commutateur MT25 sis au Centre Téléphonique de Guyancourt (78).
Photographies C. R-V. - 14 juin 2022 - Coll. C. R-V/Orange DANP
_____
Ci-dessus : Commutateur MT25 sis au Centre Téléphonique Flandre, à Aubervilliers (93).
Photographies C. R-V. - 20 juin 2022 - Coll. C. R-V/Orange DANP
_____

Ci-dessus : devant les calculateurs centralisés du premier Commutateur MT25 sis au Centre Téléphonique Carnot, à Paris (75).
(Photographie : © C. R-V. - 13 novembre 2018.)
_____
Ci-dessus : les deux Commutateurs MT25 sis au Centre Téléphonique Gravelle, à Saint-Maur.
Photographies C. R-V. - 5 novembre 2021 - Coll. C. R-V/Orange DANP
_____
Ci-dessus : Commutateur MT25 sis au Centre Téléphonique de Cavaillon Mouret, à Cavaillon (84).
Photographies C. R-V. - 12 juillet 2022 - Coll. C. R-V/Orange DANP
_____
Ci-dessus : Commutateur MT25 sis au Centre Téléphonique du Pontet Fargues, à Le Pontet (84).
Photographies C. R-V. - 21 juillet 2022 - Coll. C. R-V/Orange DANP
_____
Ci-dessus : Commutateur MT25 sis au Centre Téléphonique de Marignane Saint-Pierre, à Marignane (13).
Photographies C. R-V. - 22 juillet 2022 - Coll. C. R-V/Orange DANP
_____
Ci-dessus : Commutateur MT25 sis au Centre Téléphonique de Toulon Daveluy, à Toulon (83).
Photographies C. R-V. - 26 juillet 2022 - Coll. C. R-V/Orange DANP
_____
Ci-dessus : Commutateur MT25 sis au Centre Téléphonique de La Seyne-sur-Mer (83).
Photographies C. R-V. - 12 août 2022 - Coll. C. R-V/Orange DANP
_____
Ci-dessus : Commutateur MT25 sis au Centre Téléphonique Draguignan La Rouguière, à Draguignan (83).
Photographies C. R-V. - 16 août 2022 - Coll. C. R-V/Orange DANP
_____
Ci-dessus : Commutateur MT25 sis au Centre Téléphonique La Ciotat Chantegrillet, à La Ciotat (13).
Photographies C. R-V. - 17 août 2022 - Coll. C. R-V/Orange DANP
_____
Ci-dessus : Commutateur MT25 sis au Centre Téléphonique Marseille Menpenti, à Marseille (13).
Photographies C. R-V. - 19 août 2022 - Coll. C. R-V/Orange DANP
_____
Ci-dessus : Commutateur MT25 sis au Centre Téléphonique Marseille Saint-Louis, à Marseille (13).
Photographies C. R-V. - 19 août 2022 - Coll. C. R-V/Orange DANP
Ci-dessus : Commutateur MT25 sis au Centre Téléphonique Marseille Prado, à Marseille (13).
Photographies C. R-V. - 21 août 2022 - Coll. C. R-V/Orange DANP
Ci-dessus : Commutateur MT25 sis au Centre Téléphonique Marseille Cinq Avenues, à Marseille (13).
Photographies C. R-V. - 23 août 2022 - Coll. C. R-V/Orange DANP
_____
_____
Ci-dessus : Commutateur MT25 sis au Centre Téléphonique Nice-Blausasc, à Blausasc (06).
Photographies C. R-V. - 5 septembre 2022 - Coll. C. R-V/Orange DANP
_____
Ci-dessus : Commutateur MT25 sis au Centre Téléphonique d'Antibes Juan-les-Pins (06).
Photographies C. R-V. - 7 septembre 2022 - Coll. C. R-V/Orange DANP
_____
Ci-dessus : Commutateur MT25 sis au Centre Téléphonique de Sainte-Maxime (06).
Photographies C. R-V. - 9 septembre 2022 - Coll. C. R-V/Orange DANP
_____
Ci-dessus : Commutateur MT25 sis au Centre Téléphonique de Nice Baumettes, à Nice (06).
Photographies C. R-V. - 16 septembre 2022 - Coll. C. R-V/Orange DANP
_____
Ci-dessus : Commutateur MT25 sis au Centre Téléphonique de Nice Gounod, à Nice (06).
Photographies C. R-V. - 12 décembre 2022 - Coll. C. R-V/Orange DANP
_____
Ci-dessus : Commutateur MT25 sis au Centre Téléphonique Boulogne, à Boulogne-Billancourt (92).
Photographies C. R-V. - 14 janvier 2023 - Coll. C. R-V/Orange DANP
_____
Ci-dessus : Commutateur MT25 sis au Centre Téléphonique Boissy, à Boissy-Saint-Léger (94).
Photographies C. R-V. - 11 février 2023 - Coll. C. R-V/Orange DANP
_____
Ci-dessus : Commutateur MT25 sis au Centre Téléphonique Blanc-Mesnil, à Le Blanc-Mesnil (93).
Photographies C. R-V. - 13 février 2023 - Coll. C. R-V/Orange DANP
_____
Ci-dessus : vue du Commutateur MT25 sis au centre téléphonique de Courbevoie - Défense, Courbevoie (92).
Photographies C. R-V. - 23 février 2023 - Coll. C. R-V/DANP.
_____
Ci-dessus : Commutateur MT25 sis au Centre Téléphonique Roubaix Pile, à Roubaix (59)
Photographies C. R-V. - 27 février 2023 - Coll. C. R-V/Orange DANP.
_____
Ci-dessus : Commutateur MT25 sis au Centre Téléphonique de Nanterre (92).
Photographies C. R-V. - 1er mars 2023 - Coll. C. R-V/Orange DANP
_____
Ci-dessus : Commutateur MT25 sis au Centre Téléphonique de Sainte-Geneviève-des-Bois (91).
Photographies C. R-V. - 2 mars 2023 - Coll. C. R-V/Orange DANP
_____
Ci-dessus : vue d'ensemble du Commutateur MT25 sis au Centre Téléphonique CRÉTEIL (SAVAR), à Créteil (94)
Photographies C. R-V. – 30 mai 2023 - Coll. C. R-V/Orange DANP
_____
Ci-dessus : Commutateur MT25 sis au Centre Téléphonique de Rosny-sous-Bois (93).
Photographies C. R-V. – 5 juin 2023 - Coll. C. R-V/Orange DANP
_____
Ci-dessus : Commutateur MT25 sis au Centre Téléphonique Plaine, à Saint-Denis (93)
Photographies C. R-V. – 6 juin 2023 - Coll. C. R-V/Orange DANP
_____
Ci-dessus : Commutateur MT25 sis au Centre Téléphonique de Trappes (78)
Photographies C. R-V. – 19 juin 2023 - Coll. C. R-V/Orange DANP
_____
Ci-dessus : Commutateur MT25 sis au Centre Téléphonique Bordeaux Mériadeck, à Bordeaux (33)
Photographies C. R-V. – 25 juillet 2023 - Coll. C. R-V/Orange DANP
_____
Ci-dessus : Commutateur MT25 sis au Centre Téléphonique Mérignac, à Mérignac (33)
Photographies C. R-V. – 26 juillet 2023 - Coll. C. R-V/Orange DANP
_____
Ci-dessus : Commutateur MT25 sis au Centre Téléphonique de Talence (33)
Photographies C. R-V. – 27 juillet 2023 - Coll. C. R-V/Orange DANP
_____
Ci-dessus : Commutateur MT25 sis au Centre Téléphonique Montpellier Rondelet, à Montpellier (34)
Photographies C. R-V. – 7 août 2023 - Coll. C. R-V/Orange DANP
_____
Ci-dessus : Commutateur MT25 sis au Centre Téléphonique Toulouse Garonne, à Toulouse (31)
Photographies C. R-V. – 21 août 2023 - Coll. C. R-V/Orange DANP
_____


Ci-dessus : Console Système de retransmission des alarmes d'un Commutateur MT25 (en l'espèce BEAUJON 3 ET1 (AB33)) (Photographie : © C. R-V.)
_____

Ci-dessus, Mercure 321 : vue d'un Calculateur de Commutateur MT25, modèle MU321 reconnaissable car il est constitué de 13 cartes sur l'alvéole du haut et de 3 blocs d'alimentation situés en haut à droite.
Photographie : © C. R-V. Robert Keller 2 ET1 (AD82).
_____

Ci-dessus, Mercure 322 : vue d'un Calculateur de Commutateur MT25, modèle MU322 reconnaissable car il est constitué de 2 cartes sur l'alvéole du haut (miniaturisation oblige) et d' 1 seul bloc d'alimentation situé en haut à droite.
Photographie : © C. R-V. Beaujon 3 ET1 (AB33)
_____

Ci-dessus : vue des trois armoires nécessaires à la contenance de la documentation papier détaillée et complète d'un commutateur MT25, avec tous les schémas, les diagrammes, les notes techniques, les instructions relatives au matériel (de chaque organe et partie d'organe) et aux logiciels de fonctionnement.
( Photographie : © C. R-V.)
_____
_____
Concernant les Services Confort : le système MT25 supporte les services Mémo Appel (Réveil) et Transfert d'Appel Local depuis le 15 septembre 1985, la Facturation Détaillée depuis début 1987, les services Signal d'Appel et Conversation à 3 depuis le 30 juin 1987 ; le service du Transfert d'Appel National depuis le 1er février 1988, la Présentation de l'Identité du Demandeur depuis le 2 septembre 1997 (Uniquement pour les abonnés reliés sur CSN ; l'URA2G étant incompatible avec ce service).
_____
_____

Ci-dessus : en visite devant le vénérable Commutateur MT25 - JEMMAPES 2 ET2 (AD06).
Mis en service le 27 septembre 1990 - Hors service le 29 septembre 2020 - Fabricant : Alcatel, qui est l'ultime Commutateur MT25 de Paris intra-muros à cesser ses activités.
Photographie C. R-V. - 8 août 2017 - Coll. C. R-V.
_____
Ci-dessus : second Commutateur MT25 sis au Centre Téléphonique Nord-Jemmapes, à Paris.
Photographies C. R-V. - 3 septembre / 9 novembre 2021 - Coll. C. R-V/Orange DANP
_____
Ci-dessus : Commutateur MT25 sis au Centre Téléphonique Aulnay, à Aulnay-sous-Bois (93).
Photographies C. R-V. - 10 novembre / 20 septembre 2021 - Coll. C. R-V/Orange DANP
_____

Ci-dessus : équipe présente sur le Centre Téléphonique d'Aulnay-sous-Bois, ayant assuré la mise hors service du dernier MT25 de France - AULNAY A3 (BB03), devant les Calculateurs.
Photographie C. R-V. - 13 octobre 2020 - Coll. C. R-V.
_____

Ci-dessus : le soir de l'arrêt définitif de l'ultime Commutateur MT25 de France - AULNAY A3 (BB03), à Aulnay-sous-Bois (93), moi-même présent avec une partie de l'équipe, devant les Calculateurs.
Photographie Cresta - 13 octobre 2020 - Coll. C. R-V.
Arrêt du dernier Commutateur MT25 de France : AULNAY A3 (BB03) le 13 octobre 2020.
Video Youtube - Novembre 2020 - © Équipe de communication Orange DTRS.
_____
Uniquement accessible aux fonctionnaires de France-Télécom et aux personnels de Orange, les liens, via le réseau interne Plazza, vers :
https://plazza.orange.com/docs/DOC-322379
https://plazza.orange.com/docs/DOC-99614
https://plazza.orange.com/docs/DOC-957289
https://plazza.orange.com/docs/DOC-1664367
MT35, présenté en 1983 par Thomson-CSF, variante modulaire de petite capacité conçue pour les zones à faible densité de population.
- Un Commutateur MT35 peut être utilisé indifféremment en commutateur d'abonnés ou en commutateur de transit, ou de manière mélangée.
- Il s'agit d'un système à commande répartie.
- Construit en technologie CMOS pour la plupart des circuits intégrés utilisés, et NMOS pour les circuits complexes et spéciaux.
- Il s'agit également d'un système à Réseau de Connexion (RCX) réparti, car chaque Baie Terminale (BT) est parfaitement autonome et constitue un véritable commutateur automatique capable de prendre en charge jusqu'à 1200 abonnés analogiques par baie en charge typique si la baie est reliée à des liaisons numériques MIC et jusqu'à 800 abonnés analogiques par baie en charge typique si la baie est reliée à des liaisons de transmission analogiques de basse fréquence.
- Il s'agit d'un système modulaire qui permet de connecter entre elles par des liaisons numériques MIC spécialisées jusqu'à 14 Baies Terminales (BT) pouvant être accouplées pour constituer un commutateur modulaire capable de gérer jusqu'à 17.000 abonnés.
_____
L' Architecture d'un Commutateur MT35 est constituée en 4 niveaux : (concerne chaque Baie Terminale (BT) constituant tout ou partie d'un commutateur MT35).
- Une et une seule Baie d'Exploitation et de Maintenance (BEM) est nécessaire pour superviser le Commutateur MT35 complété par au moins une Baie Terminale (BT).
_____
Bien parti pour être acheté par l'administration des Télécommunications en 1983 pour couvrir les zones à faible densité, il n'est finalement pas déployé en France, car le système est abandonné en automne 1984 en raison de la fusion CIT Alcatel – Thomson CSF Telephone initiée à partir de Juillet 1984 et aboutie par un acte de fusion-scission du 31 octobre 1985.
Le système MT35 sera toutefois vendu en Amérique du Sud, notamment au Chili dès 1983 en 6 exemplaires, avant son arrêt rapide de commercialisation.
_____

Ci-dessus : Baie Terminale formant partie d'un Commutateur MT35.
Photographie Thomson-CSF.
_____
Histoire des Télécommunications Françaises © Claude Rizzo-Vignaud, 30 septembre 2023.
___
Tous nos plus vifs remerciements aux Ingénieurs E.R. de la CIT-Alcatel, dont M. Jean-Yves Marjou pour leur aide précieuse dans la compréhension de certaines notions très particulières à la technologie temporelle.
___
Découvrez le site des Anciens de la CIT-Alcatel ici : http://photosalcatel.pagesperso-orange.fr/index.ht...